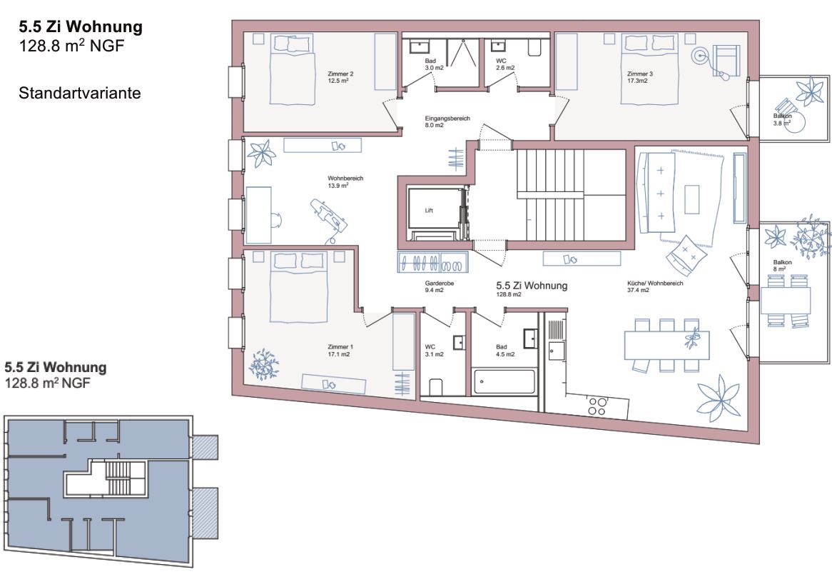
Standardvariante.JPG