SCHÖNGRÜN
Umgebung
Fassade
Schnitt
5.5 Zimmer Wohnung
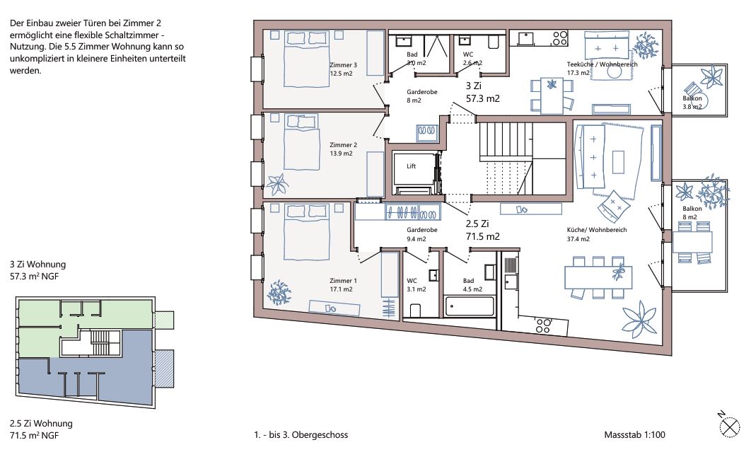
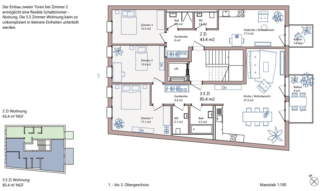
Flexible Aufteilung
Untergeschoss
Kaufpreise
Kontakt